首页 今日快讯文章正文

建筑施工识图技巧全解析!从基础到详图一看就会

今日快讯 2025年10月27日 01:58 0 admin

今天,安全生产文库给大家介绍一款超实用的《建筑施工识图技巧 43 页.pdf》。这份课件系统梳理了建筑施工识图的核心知识,能帮学习者快速掌握从图纸认知到实际应用的关键技能,是建筑行业相关人员提升专业能力的优质资料。

一、培训课件概述

(一)课件核心定位

该课件是一份聚焦建筑施工识图的专业培训资料,以 “理论 + 实操指引” 为核心,围绕建筑施工图的认知、解读方法及关键细节展开,旨在帮助使用者全面掌握建筑识图技能,满足建筑施工环节中对图纸解读的实际需求。

(二)适用行业领域

  1. 建筑行业:涵盖住宅建筑、公共建筑、工业建筑等各类建筑工程项目的施工环节;

  1. 相关配套领域:包括建筑设计、监理、造价咨询、房地产开发等与建筑施工紧密关联的领域,适用于项目全周期中涉及图纸使用的场景。

(三)适用人群

  1. 建筑施工一线人员:如施工员、技术员、班组长等,需通过识图指导现场施工操作;

  1. 建筑行业新手:刚入行的设计师、监理员、造价员等,需夯实识图基础以开展本职工作;

  1. 相关专业学习者:建筑工程、土木工程等专业的学生,需将理论知识与实际图纸解读结合,提升就业竞争力。

二、培训课件具体内容

(一)建筑施工图基础认知(概述部分)

  1. 房屋组成及作用:明确房屋核心组成构件(基础、墙 / 柱、楼地面、屋面、楼梯、门窗)的功能,如基础是承重并传递荷载至地基的关键构件,楼梯是垂直交通与紧急疏散设施;

  1. 建筑施工图定义与内容:阐述建筑施工图是按国家 **《建筑制图标准》** 绘制的房屋内外形状、结构构造等正投影图样,全套图纸包含建筑、结构、给水排水、电气、采暖通风五类,且有固定编排顺序(图纸目录→设计总说明→总平面图→各类专业图纸);

  1. 关键建筑术语:解释核心术语含义,如横墙 / 纵墙(按建筑宽度 / 长度方向划分)、开间 / 进深(横墙 / 纵墙间距离,以轴线为基准)、绝对标高 / 相对标高(绝对标高以青岛黄海海平面为 ±0.000,相对标高以底层室内地坪为 ±0.000)等,为识图打基础。

(二)四大核心建筑图纸详解

  1. 建筑总平面图

    • 形成与用途:通过水平投影展现拟建工程周边建筑、地形、道路等,用于施工定位、土方施工及绘制水 / 暖 / 电管线总平面,常用比例 1:500、1:1000、1:2000;

    • 图示内容与图例:包含拟建建筑定位、原有建筑位置、地形、道路、风向频率玫瑰图等,明确新建 / 原有建筑(粗 / 细实线)、拆除建筑(细实线)、围墙(砖石 / 铁丝网等不同图例)等符号含义。

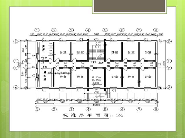
  1. 建筑平面图

    • 形成与作用:水平剖切房屋(略高于窗台处)的投影图,反映房屋平面形状、房间布置、墙 / 柱位置及厚度、门窗位置及开启方向,是放线、砌墙、装门窗的核心依据;

    • 分类与内容:包括首层 / 标准层 / 顶层 / 屋面平面图,标注定位轴线及编号、尺寸与标高(内部 / 外部尺寸)、楼梯、附属设施等,明确建筑面积(外墙结构外围水平面积之和)、使用面积(净面积)及平面面积利用系数(使用面积 / 建筑面积 ×100%)。

  1. 建筑立面图

    • 形成与分类:与房屋立面平行的正投影图,分正 / 背 / 侧(左 / 右)立面图;

    • 内容与作用:标注图名比例、定位轴线、图线、尺寸标高及文字说明(如墙面材料 “100×100 黄色釉面砖”),体现建筑立面层次与艺术效果,为外形设计和装修提供依据。

  1. 建筑剖面图与详图

    • 建筑剖面图:垂直剖切房屋的正投影图,表达内部垂直结构、分层情况、各部位高度,帮助理解房屋竖向构造;

    • 建筑详图:对关键部位的放大图,包括墙身剖面详图(从基础到屋顶的构造)、楼梯详图(楼梯段、平台、栏杆扶手组成与尺寸)、窗台 / 檐口 / 雨水口 / 散水节点详图,解决平面图、立面图、剖面图无法详细表达的构造问题。

(三)识图方法指引

明确 “先看目录说明→再看总平面图→后看各层平面 / 立面 / 剖面图→结合专业图纸对照看” 的流程,强调关注定位轴线、尺寸关系,且各工种图纸需结合查看(如建施参照结施、设施),避免矛盾,确保识图准确。

三、预期学习效果

(一)知识掌握效果

  1. 能清晰区分民用 / 工业 / 农业建筑的分类,熟练掌握房屋各组成构件的功能及建筑施工图的全套组成与编排顺序;

  1. 精准理解并记忆开间、进深、标高、建筑面积等核心建筑术语的定义,避免术语混淆导致的识图误差。

(二)图纸解读能力效果

  1. 独立解读四大核心图纸:能看懂建筑总平面图的定位与图例、建筑平面图的房间布置与尺寸、建筑立面图的外观与材料标注、建筑剖面图的竖向构造及各类详图的关键节点,明确图纸表达的施工要求;

  1. 具备图纸对照分析能力:能将建施、结施、设施等不同专业图纸结合查看,识别并排查图纸间的矛盾(如管道穿梁、穿基础问题),为施工前图纸会审提供支持。

(三)实际应用效果

  1. 对施工一线人员:能依据图纸指导现场放线、砌墙、安装门窗、装修等操作,确保施工符合设计要求;

  1. 对行业新手与学习者:快速建立建筑识图的系统认知,将理论转化为实操能力,提升岗位适配度(如造价员能依据图纸计算工程量,监理员能依据图纸检查施工质量),为职业发展奠定基础。


建筑施工识图技巧全解析!从基础到详图一看就会

建筑施工识图技巧全解析!从基础到详图一看就会

建筑施工识图技巧全解析!从基础到详图一看就会

建筑施工识图技巧全解析!从基础到详图一看就会

建筑施工识图技巧全解析!从基础到详图一看就会

建筑施工识图技巧全解析!从基础到详图一看就会

建筑施工识图技巧全解析!从基础到详图一看就会

建筑施工识图技巧全解析!从基础到详图一看就会

建筑施工识图技巧全解析!从基础到详图一看就会

建筑施工识图技巧全解析!从基础到详图一看就会

建筑施工识图技巧全解析!从基础到详图一看就会

建筑施工识图技巧全解析!从基础到详图一看就会

建筑施工识图技巧全解析!从基础到详图一看就会

建筑施工识图技巧全解析!从基础到详图一看就会

建筑施工识图技巧全解析!从基础到详图一看就会

建筑施工识图技巧全解析!从基础到详图一看就会

建筑施工识图技巧全解析!从基础到详图一看就会

建筑施工识图技巧全解析!从基础到详图一看就会

建筑施工识图技巧全解析!从基础到详图一看就会

建筑施工识图技巧全解析!从基础到详图一看就会

建筑施工识图技巧全解析!从基础到详图一看就会

建筑施工识图技巧全解析!从基础到详图一看就会

建筑施工识图技巧全解析!从基础到详图一看就会

建筑施工识图技巧全解析!从基础到详图一看就会

建筑施工识图技巧全解析!从基础到详图一看就会

建筑施工识图技巧全解析!从基础到详图一看就会

建筑施工识图技巧全解析!从基础到详图一看就会

建筑施工识图技巧全解析!从基础到详图一看就会

建筑施工识图技巧全解析!从基础到详图一看就会

建筑施工识图技巧全解析!从基础到详图一看就会

建筑施工识图技巧全解析!从基础到详图一看就会

建筑施工识图技巧全解析!从基础到详图一看就会

建筑施工识图技巧全解析!从基础到详图一看就会

建筑施工识图技巧全解析!从基础到详图一看就会

建筑施工识图技巧全解析!从基础到详图一看就会

建筑施工识图技巧全解析!从基础到详图一看就会

建筑施工识图技巧全解析!从基础到详图一看就会

建筑施工识图技巧全解析!从基础到详图一看就会

建筑施工识图技巧全解析!从基础到详图一看就会

建筑施工识图技巧全解析!从基础到详图一看就会

建筑施工识图技巧全解析!从基础到详图一看就会

建筑施工识图技巧全解析!从基础到详图一看就会

建筑施工识图技巧全解析!从基础到详图一看就会


发表评论

长征号 Copyright © 2013-2024 长征号. All Rights Reserved.  sitemap